| 第4回 木割の話 「社」の種類と木割 河田克博 (名古屋工業大学大学院教授) |
||
| 今回は、神社建築、すなわち「社」についての話である。神社は全国各地にあり、日本では八百万神(やおよろずのかみ)といわれるくらい実に多種の神々が祀られており、その建築の形式や規模もまた多様である。さらに、実在した人物を祖先神として祀る場合もあり、これを霊廟建築というが、霊廟建築も一種の神社建築とみて古典建築書の分類上は差し支えない。1) | ||
| 「社」境内の建築構成 | ![]() |
|
| 神社の境内は、ある程度標準的な建築で構成されている。それだけに木割書として最も普遍化・整理しやすかったようで、一般に流布しやすい木版本2)の木割書としては「社」について記した『新編雛形』が、現在判明している嚆矢である。3) 『新編雛形』の冒頭には、内容項目を記した目次があって、○○之事、△△之事…、と記した後、各項目建物の姿図が描かれ、次いでその建物の木割がひらがな主体で記されている。内容項目は次の順で記される。 花表、四足花表、一間社向作、一間社流作、二間社、三間社、五間社、拝殿、鐘楼、楼門、水門玉垣、四足門、厩。 このうち「花表」とは鳥居のことで「トリイ」とルビが付いている。一間社向作から五間社までは、御神体を祀る本殿のことで、後でふれるように多様な形式および名称がある。拝殿は、中に人が入り本殿に向かって参拝する建物である。鐘楼は仏教に関連するから現代では違和感があるが、神仏習合の時代からすれば自然である。門も建築形式から捉えれば、本稿第2回の「門」に分類すべきだが、神社境内の建物機能からはここに記されて当然であろう。厩は、御神馬を入れる建物で、日光東照宮には「神厩」と称する建物がある。 |
||
| 「社」の本殿形式と名称 | ①『門外十七種』の「春日作」 | |
| 今日、「日本建築史」のテキストや図集をみると、神社本殿の形式名称が多種みられ、ある形式が大抵同名の形式名として扱われているから、学ぶ側からはそれが学術名のように思われている。しかし、この形式名称は「日本建築史学」を拓いた伊東忠太博士が「日本神社建築の発達」4)として論じた内容にほぼ従ったもので、公的に学術協議し成立したものではなく、従前の史的内容を必ずしも正しく表現しているとはいえない。「日本神社建築の発達」の表によれば、〈神代より奈良朝の終まで〉大社造…正方形、前後切妻。住吉造‥長方形、前後切妻。神明造…長方形、左右切妻。〈平安朝より足利の終まで〉春日造…直角形、妻入り向拝あり。流れ造‥直角形、平入り向拝あり。日吉造…直角形、入母屋、平入り、屋根後面特色あり。八幡造‥内陣切妻造、外陣流れ造。伽藍造…直角形、向拝あり、切妻又は入母屋、平入り。〈豊臣及徳川〉権現造‥本殿、相の間、拝殿を連結す。八棟造…権現造の拝殿の左右に翼あり。 とある。このうち「伽藍造」という形式名は現在一般には用いられておらず、「八棟造」が「権現造」の形式名と同一視されているくらいが、伊東論と異なる程度である。しかしながら主として江戸時代に著された古典建築書(ほとんど木割書)の中身をみていくと、伊東博士が整理した形式名が必ずしも同一の形式を示しているとはいえないのである。 大阪の住吉大社を意識した「住吉造」、伊勢神宮を意識した「神明造」は木割書と一致しているが、伊東博士がおそらく出雲大社を意識したとみられる「大社造」は木割書では確定せず、今日いう「流れ造」の形式をみせて「大社作」としているものもある。逆に『匠明』では、「出雲大社之図」と称して形式名を付していない。『匠明』では、ほかに「三間大社」「五間大社」も載せられるから、安易に「大社造」なる名称は考えもしなかったであろう。 「流れ造」については、『新編雛形』に「一間社流作」とあり問題ないとは思われるが、『匠明』ではこれを「平作壱間社」「平作弐間社」などとして「流れ造」とは呼んでいない。 問題は「春日造」で、伊東博士は奈良の春日大社社殿を意識しているのであるが、木割書では、切妻・妻入は同じながら向拝のないものを「春日作」としているものがある①。また、いわゆる「三間社春日造」の正面に唐破風を付けて「春日作リ」②とし、今日いう「春日造」の正面に唐破風を付けて「王子作」③としているものもある。唐破風を除けば「王子作」のほうが、今日の「春日造」に近い。「日吉造」「八幡造」も木割書では普遍的な形式ではなく、伊東博士のいう「権現造」も、古典建築書では、むしろ博士のいう「伽藍造」の形態であり、逆に『匠明』の「五間四面大社ノ図」や別史料の「玉殿作」や「石間造」(イシノマヅクリ)のほうが博士のいう「権現造」に近いのである。神社本殿の形式名称は、古典建築書を踏まえて、歴史的な的確性を再検討する必要があろう。 |
![]() |
|
| ②『神社雛形集』の「春日作リ」 | ||
![]() |
![]() |
![]() |
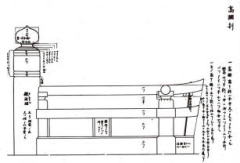
| ③『神社雛形集』の「王子作」 | ④ 高欄の木割 | ⑤「鎮守」の木割 |
| 「社」の木割 | ||
| さて、社の木割システムであるが、『新編雛形』の「一間社向作(今日いう春日造)」を例に取ると、まず平面形は、軒出とともに、垂木間隔σを1枝として、σの数で説明される。次いで、正面柱の間隔、つまり柱間Lが基準になり、Lに対する比率で主柱(=丸柱)太さcが決められ、このcから向拝柱(=角柱)太さ・浜床高さ・縁葛の大きさ・大床高さ・長押・小壁せい・亀腹せい・破風腰幅など、実に多数の部材寸法・部材間寸法が決定される。 ところが、もっと細かい規定をなすべき「高欄の木割」については、垂木幅tを基準に説明している。試みに原文を次に掲げると、「一、かうらん(高欄)のわりやう(割用)、ちふく(地覆)のせいはたるき(垂木)のしたば(下端)弐本。くり(繰り)は二分半。同はゞ(幅)も二本。ぢふくとひらげた(平桁)のあい(間)壱本七分半。ひらげたのあつさ(厚さ)九分。はゞ二本。ひらげたとほこぎ(架木)のあひ(間)壱本七分半。ほこぎのふとさ(太さ)壱本壱分。以上合(あわせて)七本半。ほこぎのそり(反り)はその木ほど。ぢふくのはな(端)ので(出)は二本。そのかど(角)より三寸かうばい(勾配)のよこて(横手)をひきあげ、ほこ木とひらげたとの長さ。つか(束)の大さ、ぢふくとひらげたのあひ壱本七分半。ひらげたとほこ木のあひ壱本半。ますがた(升形)の高さ八分」〈( )内は筆者補注〉とあり、コツコツと文面を見ながらスケッチしていって初めて全体像が明らかになるのであるが、この内容を後世の木割書では図面上で説明しているから大変有難い④。 社の木割の一例として「鎮守」を掲げる。図版⑤の木割史料などに基づき、現代的な実用に即して作成した図が⑥である。 |
||
![]() |
![]() |
![]() |
| ⑥「鎮守」の断面図・立面図・平面図 | ||
| 注 1)神仏習合の名残から、日光の輪王寺大猷院霊廟のように寺院の所属になっているものもある。 2)肉筆で書いた「筆写本」に対して、木版で印刷した書。量産可能であるから多くの人に読まれることになる。 3)明暦元年(1655) 刊。新編4 4 とあるから、これに先行する木版本の存在が推定されるが、現在のところ未発見である。 4)『建築雑誌』(明治34 年)所収。明治33 年11 月に講話したものを補足執筆。 5)図版④・⑤・⑥は、拙編著『日本建築古典叢書3 近世建築書-堂宮雛形2 建仁寺流』(大龍堂書店、1988 年)所収。 |
||
| かわた・かつひろ| 1952 年生まれ。 1977 年名古屋工業大学大学院工学研究科建築学専攻修士課程修了。 1990 年同学博士後期課程修了。工学博士。名古屋工業大学助教授を経て、2005 年より現職。 専門は建築史・都市史。 著書に『日本建築古典叢書3 近世建築書−堂宮雛形2 建仁寺流』(大龍堂書店)、ビュジアル版『城の日本史』(角川書店)など |
||