| 第2回 木割の話 「門」の種類と木割 河田克博 (名古屋工業大学大学院教授) |
|
| 前回述べた「堂宮雛形」「屋敷雛形」は、建物の設計意匠を、部材寸法・部材間寸法の比例によって説明するのを主とするところから、こうした史料を木割書と呼んでいるが、その内容を建築形式別に分類すると、建物群のある敷地・境界に設置される「門」、仏塔として建てられる高層建築となる「塔」、寺院建築に該当する「堂」、神社建築としての「社」、そして武家住宅の設計手法を記した「屋敷」の5つに大別される。著名な木割書『匠明』(5巻、東京大学蔵)は、これに従うべく「門記集」「塔記集」「堂記集」「社記集」「殿屋集」と題されており、『匠明』の租本と推される『諸記集』(5冊、静嘉堂文庫蔵)では、このうち「殿屋集」が「武家記集」と題され、より直接的な題名となっている。今回は、このうち社寺・屋敷に共通して出てくる「門」の木割について述べる。 | ①「山門」の木割 ②「楼門」の木割 ③「木草門」の木割 |
| 「門」の種類 | |
| 一口に「門」といっても、その種類は多種・多様であり、同じ形式の門であっても異なる呼び方をすることがある。それは、設計する大工が門を建築形式的に捉える場合と、社寺あるいは屋敷における宗教的意味や位置を意識して見る場合があるからである。まず、建築形式的には、 〈建築形式的名称〉棟門、唐棟門、三間棟門、五間棟門、上土門、四脚門、唐四脚門、八脚門、唐八脚門、薬医門、唐薬医門、平唐門、向唐門、冠木門、塀重門、向塀重門、高麗門、萱門、土門、埋門、一間山門(角山門)、三間山門、五間山門、一間楼門、三間楼門、平大門、大門、三間中門、五間中門、鐘楼門など 多数あるが、建築形式的にほぼ普遍的なもので、当時の大工は、これらの名称を見ただけで、どのような形の門であるか大体イメージできる。このうち最も単純かつ標準的な門は棟門で、出入口の両側に本柱のみを立て、柱上に水平の冠木を置き、通常は切妻屋根を乗せる単純な構造である。柱2本で支えるだけで前後均等に荷重を置いてバランスを保つ不安定な門であるから、大規模な屋根を載せる門には向かない。これに対し四脚門は、本柱2本の前後に2本ずつ計4本の控柱で支え構造的に安定しているので大規模な門も可能である。京都御所入口にあるいくつかの巨大な門も、その形式は四脚門である。また、間口が1間(=柱間数のこと)で控柱が4本であるから控柱を脚に見立てて四脚門と呼ぶ。これが間口3間(1)になると控柱が8本になると八脚門と呼ぶ。なお、本柱2本に控柱2本で支え、結果的に屋根の中心と柱の中心がずれるのが薬医門である。 次に、唐 が付いた門は、これが頭に付くと唐様(2)の意匠という意味で和様(3)の場合はとくに記さない。これが唐門と門の前に記されると屋根を唐破風にした門という意味で少々ややこしい。また平 が冠せられると屋根の平側の軒が正面にあるという意味で、向 が冠せられると正面に破風の形が見えるという意味で、破風の下の妻面に彫刻などの装飾が施され華やかな正面を見せることとなる。冠木門は2本の柱上に横架材としての冠木だけを設け屋根を付けない門、塀重門は屋根を付けることもあるが基本的には冠木も屋根も載せない門で、扉の重みとバランスを取るためには門の両側に塀が連なっていなければならない。長い槍を立てて通るために、武家の門として成立したものである。 以上は、いわゆる単層門の類であるが、重厚な門になると重層にする。屋根を上下2層に設け、上層屋根を切妻造ではなく入母屋造にして、唐様にしたものを山門①、和様にして間口5間にしたものを大門と呼ぶ。ただし、単層門で屋根を入母屋造にしたものは平大門である。また、重層門であるが、下層に屋根を廻さず高欄を付けた門を楼門②という。上層に鐘楼を乗せると鐘楼門である。 以上の建築形式がイメージできる門に対し、次に掲げるのは固有・独特の名称である。 〈宗教的意味や位置による名称〉涅槃門(=菩提門)、発心門、木草門(=貴惣門)、青地門、修行門、幣串門、釘貫門、薬門、海上門、鎮固門、藻壁門、皇嘉門、待賢門、仁王門、夜叉門、二天門、黄門、勅額御門、南大門、東門、西門、南門、北門など これらの名称を聞いて、その門の姿をイメージできる大工は、当時としてもごく限定されるであろう。特定の社寺や御所などのみで使用される類である。たとえば仁王門は、出入口の両側に仁王像が安置されているからで、建築形式としては、八脚門もあれば三間楼門もある。また木草門③は、妻側に破風を3つ付けた特異な門で、ありえないような形だが、歓喜院貴惣門(4)として実在している。これらの門は名称もさながら、形式・意匠も独特のものが多いが、江戸時代には実在したからこそ木割書に記されているものと察せられる。現状の遺構のみで歴史を決め付けてはならない。 |
|
| 「門」の木割 | ④「唐四脚門」の木割 |
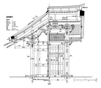
| さて、門の木割システムであるが、まず本柱の間隔、つまり柱間Lが基準になり、Lに対し高さ方向の高さ(通常は内法高さ)が規定される。それが精緻な意匠となって、垂木間隔が密になり、いわゆる本繁垂木5)となると、垂木間隔(=垂木中心間の距離)σを1枝と称して柱間Lに対応させて説明するようになる。これを枝数による規定法といい、江戸時代ではσからLを説明するのが大半である。柱間Lは、柱の中心間の距離をいうのが一般的であるが、柱の内々距離を示すこともある。Lが決定されると、Lに対する比率で本柱太さcが決められ、cは扱いやすい基準寸法になるから、このcから控柱(=袖柱ともいう)や冠木せい・柱貫幅・破風腰幅などさまざまな部材寸法が規定されることとなる。 木割は、すべての部材および部材間隔を比例で説明しているから、これに従うと先の京都御所のような巨大な四脚門もあれば標準的なスケールの四脚門もつくれるが、最小限、人がゆったりと通れるスケールが必要であるから、設計する大工は常識を心得て実施寸法を決めている。非常識な寸法判断を心配してか、『匠明』のように標準的な柱間寸法を記述している木割書もある。 門の木割の一例として「唐四脚門」を掲げる。図版④の木割史料などに基づき木割組成図⑤を考察し、現代的な実用に即して作成した図が⑥・⑦である。 |
|
| ⑤「唐四脚門」の木割組成図 | |
| ⑥「唐四脚門」木割の断面図 | ⑦「唐四脚門」木割の立面図 |
| 注 1)門の柱間数は奇数が常識。1間の次は3間・5間となる。法隆寺中門のような4間は例外的。 2)鎌倉時代以降流行していった禅宗建築の様式に使用されるところから、今日「禅宗様」と一般に呼ばれるが、史料には「禅宗様」は出てこない。日蓮宗・浄土宗の寺院建築にも唐様はしばしば適用される。柱の上下に粽(ちまき)と呼ぶ絞込みがある、柱上に頭貫・薄台輪を載せる、組物を詰組にする、海老虹梁を用いる、などの特徴が唐様である。 3)唐様に対して、平安時代までに完成した様式。唐様のように横架材を貫にするのではなく、柱の外側に長押を打ち固める、組物は柱上に載せるだけで詰組としない、肘木鼻の途中まで鉛直にしたのち曲線に加工する、蟇股を用いる、などの特徴がある。 4)弘化5年~安政2年(1848 ~ 1855)。埼玉県の妻沼にある。 5)垂木幅1に対し、垂木せい(=高さ)1.2 ~ 1.3にし、垂木と垂木の間を垂木せいとするのが、木割書一般で説明される本繁垂木。 6)図版⑥・⑦は、拙編著『日本建築古典叢書3 近世建築書-堂宮雛形2 建仁寺流』(大龍堂書店、1988年)の付図。 |
|
| かわた・かつひろ| 1952 年生まれ。 1977 年名古屋工業大学大学院工学研究科建築学専攻修士課程修了。 1990 年同学博士後期課程修了。工学博士。名古屋工業大学助教授を経て、2005 年より現職。 専門は建築史・都市史。 著書に『日本建築古典叢書3 近世建築書−堂宮雛形2 建仁寺流』(大龍堂書店)、ビュジアル版『城の日本史』(角川書店)など |
|