| 東海地方の寺院建築 5 浄土真宗の建築 |
|
| 杉 野 丞 (愛知工業大学建築学科教授) |
|
| 真宗教団の成立と発展 | |
| 東海地方は一向宗の寺院が多いことで知られる。一向宗とは親鸞を宗祖とする浄土真宗(以下真宗)を指し、織田信長と争った長島の一向一揆、徳川家康と争った三河の一向一揆は歴史に深く刻まれ、今なお、伊勢・三河・飛騨地方には数多くの真宗寺院が残されている。 親鸞は、承安3年(1173)京都日野に生まれ、京都青蓮院の慈円の下で出家し、比叡山で修行を積み、建仁元年(1201)京都六角堂に参籠し、専修念仏を唱えていた浄土宗の開祖法然房源空の門下となった。専修念仏は「念仏を収めれば必ず往生でき、難解な教義や自力による観仏などは不要」とするものであったため旧仏教との衝突を引き起こし、承元元年(1207)法然は土佐、親鸞は越後へ流されることとなった。建暦元年(1211)親鸞は赦免されると東国一帯の布教につとめ、下野国(栃木県)の高田門徒、下総国(茨城県)の横曾根門徒などの初期教団を築き、下野に東国の拠点となる専修寺を創立した。その後、10世真慧は伊勢国一身田(津市)に専修寺を移して高田派本山とした。 一方、弘長2年(1262)京都で親鸞が示寂すると東山大谷に埋葬されたが、文永9年(1272)末娘の覚信尼が吉水の北に六角堂を建て、親鸞の影像を安置して大谷祖廟とした。その後、3世覚如が大谷祖廟を全門徒の本寺とすべく本願寺を創立し、8世蓮如は比叡山の弾圧を受けながら近江国大津(滋賀)、越前国吉崎(福井)、山城国山科(京都)に移して本格的な真宗教団を成立させた。その後、天正19年(1591)豊臣秀吉によって京都七条坊門堀川の地が寄進されると、大谷祖廟を起源とする(西)本願寺が成立した。また、11世顕如が示寂し、12世教如、13世准如と続いたが、慶長7年(1602)徳川家康によって六条烏丸の寺地が寄進されると、教如が(東)本願寺を開いたため、ここに東西本願寺が併立することとなった。そうした中で、専修念仏の施設として、さまざまな建築が建てられた。そこで、この地方に残こる真宗道場、真宗本道、御影堂と如来堂について眺めてみたい。 |
|
| 真宗道場 | |
| 親鸞は、当初小堂や庵室において他力の本願・信心・念仏・往生を説き、教団や寺院の設立の意思はなく、仏像などの本尊すら必要としなかったとされる。親鸞が本尊としたのは「南無阿弥陀仏」のような仏への帰依を誓う「名号」であり、そこでは人家の棟を上げた程度の小規模な道場があればよかったのである。そのような道場が、越前・越中・飛騨・近江などの山村のわずかに残されている。 安養寺道場(岐阜県郡上郡八幡町)は、福井県大野郡和泉村にあった穴馬上半原の道場を九頭竜流ダムの建設のために移築したものである。安養寺は、康元元年(1256)に近江国蒲生郡で創立され、6世仲淳の代に安八郡に移され、蓮如より寺号を下されたとされる。この建物は、安養寺の支配下の道場で明和9年(1772)に建立されたものである。桁行7間、梁間5間、切妻造り、当初は萱葺であったとみられる。間取りは、40畳の「広間」を中央におき、妻側の奥1間半の中央に間口に2間の「仏間」、その向かって左側に6畳の「坊主部屋」、右側に4畳半の「花部屋」を設け、妻側の前1間半の手前に入口土間を造り、他を倉庫としている。「広間」では上部に野梁を十字に組み、低く棹縁天井を張り、内陣と余間の前面では床高を上げて襖を入れ、「仏間」は板間とされ、奥には通し仏壇を構えており、仏壇に阿弥陀如来・宗祖・名号などの画像を祀った極めて素朴な建物であった。 |
|
![]() |
![]() |
| 安養寺道場 | 安養寺道場内部 |
| 真宗本堂 | |
|
真宗本堂は、門徒が増えて道場に寺号が下付されると、堂内では本尊となる阿弥陀如来像を「内陣」の須弥壇に安置し、脇仏壇に親鸞・高僧を祀り、さらに「余間」の仏壇に聖徳太子・七高僧・名号などを祀られるようになり、いわゆる「外陣」・「矢来内」・「内陣」・「余間」・「飛檐間」などからなる真宗本堂が成立する。この草創期の建物が照蓮寺本堂(岐阜県高山市)に見られる。照蓮寺は、親鸞の門弟嘉念坊善俊により鳩谷に創立され、中野で再興され、本堂は御母衣ダム建設のため現地に移されたもので、現存最古(永正元年・1504)の真宗本堂である。本堂は、桁行7間、梁間5間、入母屋造り、当初は榑板葺きであったとされる。間取りは正側3面に縁を廻らし、内部は手前5間を「外陣」、それを中央3間、両脇2間の柱列を造って空間を分け、その奥3間半では中央間口3間を「内陣」、両脇間口2間を「余間」とするが、向かって右の室は座敷とされ、「内陣」には通し仏壇を設けるなど、道場から真宗本堂へ移行する過渡的な建物とみられる。 一方、江戸時代の前期から中期にかけて地方の堂庵が寺号を持つようになると、多くの真宗本堂が建てられるようになった。本証寺(愛知県安城市野寺町)は、三河三ヶ寺の一つに数えられる中核寺院である。本証寺本堂は三河一向一揆の際に家康に破却され、天正年間(1573〜92)以降に再興され建物である。桁行9間、梁間10間半、入母屋造り、本瓦葺、1間向拝付。間取りは、正側3面に広縁を廻らし、内部は前4間を「外陣」、奥2間を「矢来内」、その奥の中央間口3間を「内陣」、その両脇間口2間を「余間」とし、後方の側背面にも廊下を巡らしている。「外陣」では、中央3間を両脇2間とする柱列を造り空間を3区分している。このように、本証寺本堂では照蓮寺本堂に比べると門徒の序列化が進んで「矢来内」と呼ばれる空間が登場し、「内陣」に阿弥陀如来像を安置する来迎柱・須弥壇が備えられ、「余間」には脇仏壇が設けられ、「外陣」では角梁を渡しており、真宗本堂として完成した姿を見せている。 |
|
![]() |
![]() |
| 照蓮寺本堂 | 照蓮寺本堂 内陣正面 |
![]() |
![]() |
| 本証寺本堂正面図 | 本証寺本堂平面図 |
| 御影堂の如来堂 | |
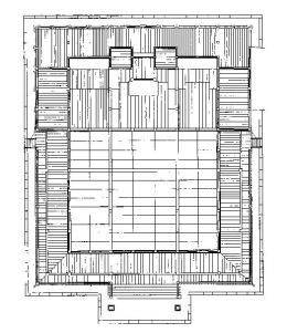
| 先述の津市一身田の専修寺は、京都の東・西本願寺に見られるように広大な境内に御影堂と如来堂を並立させている。真宗では、宗祖親鸞の木像を安置する大谷祖廟から本願寺が創立されたため、本山では親鸞を祀る「御影堂」と阿弥陀如来を祀る「如来堂」とを建てる必要があった。専修寺では、東西に広い敷地の中央に御影堂、その西に如来堂を配し、二堂形式が採られている。御影堂は、桁行実長24間、梁間長実18間半、一重入母屋造り、本瓦葺、3間向拝付の広大な建物である。規模は如来堂に比べてはるかに大きく、間取りは真宗本堂の平面形式としながら、総丸柱として柱頂に尾垂木付の二手先斗を載せ、「外陣」では柱間に大虹梁を渡し、差し肘木で二出先斗を組み、「内陣」でも前面に高肉彫の欄間を入れ、来迎柱には金箔をおし、極彩色を施すなどして荘厳している。また、如来堂は、桁行実長11間、梁間実長9間の主屋の周囲に実長1間半の裳階を廻らした入母屋造り、本瓦葺、3間向拝付の重層建物である。間取りは5間裳階付の正方形プランとし、総丸柱に下層では二手先斗、上層では尾垂木付の四手先斗を詰組みに配しながら、内部では前半に「外陣」と「矢来内」、後方中央に「内陣」、その両脇に「余間」を設けるなど、真宗本堂の平面形式を採っている。 このように、浄土真宗の建築は道場から真宗本堂へと移行し、本山においては御影堂と如来堂が並置されるまでに至り、広大な仏堂的な建物へと発展していった。しかし、ここでは今なお親鸞の説いた専修念仏の本願・信心・念仏・往生などが説かれ、真宗門徒の信仰の場として生き続けている。 |
|
![]() |
![]() |
| 専修寺伽藍配置図 | 専修寺如来堂正面立面図 |
![]() |
![]() |
| 専修寺御影堂平面図 | 専修寺如来堂平面図 |